adventure@turkeytourcenter.com
VTS-LVT
Yacht Details
Yacht Type: Motorsailer Mega Yacht
Manufacturer: Custom Made
Year Built: 2009
Length Overall (Metre/Feet): 36 m. / 118'08
Beam: 8,45 m. / 27'72
Draught: 3,3 m. / 10'82
Hull Material: Steel
Flag of Registry: United Kingdom
Registered Port: Marmaris
Summer Location: Turkey
Winter Location: Turkey
Yacht Category: Superior (Luxe)
A/C: Available
No. of Crew: 5
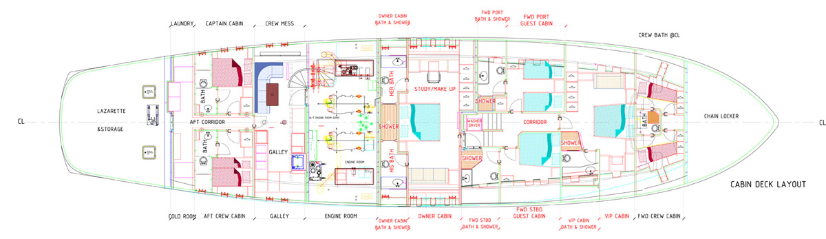
Cabin Details: 2 full beam owners & VIP cabin on port side, 1 twin bed guest cabin, 1 double bed guest cabin on starboard side, all with en suite bathrooms
Number of Guests: 8
No. of Cabins: 4
Master Cabins: 2
Double Cabins: 1
Twin Cabins: 1
Main Engines: 2 X 385 HP Caterpillar
Generators: 2 X 33 KW Kohler
Crusing Speed: 10,6 kn.
Maximum Speed: 12 kn.
Electricity: 24V , 220V
Entertainment: Internet , DVD , TV Satellite , Music Player TV/DVD in all cabins
Water Toys: Water Ski Kayak Knee Board , Snorkeling Equipment , Fishing Equipment Hamburger/Ringo Diving Equipment
Tender: Novurania 500, 5m/16.4 ft, 165 HP Volvo Engine
Tender II: 3.1m inflatable dinghy, 15 HP Yamaha


























